Academic
Professional
Personal
About
Contact
Academic
Professional
Personal
About
Contact
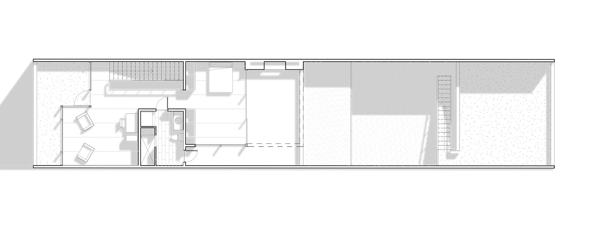
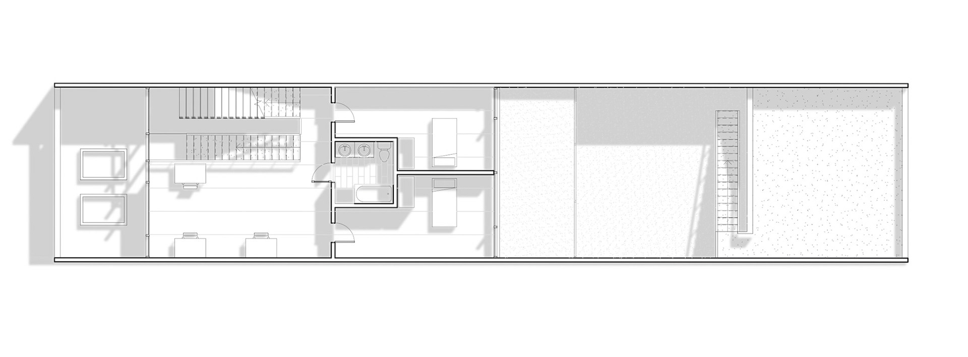
Row House
↑
Back to Top
This site uses cookies to provide better feedback to the designer.
Close